Condo Renovation

Project Type Interior Renovation

Location Upper West Side, NYC

Status Completed 2025

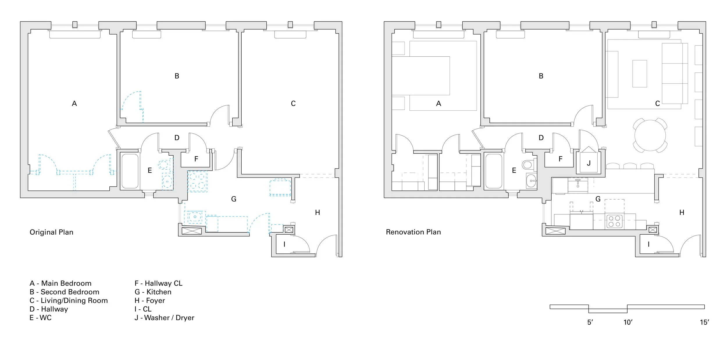
Miriam Alexandroff was the design architect for this ongoing renovation of a pre-war apartment on the Upper West side of NYC. The goal of this renovation was to retain the pre-war materials of the apartment while improving functionality in key spaces such as the kitchen and closets. A significant portion of the budget was dedicated to improving systems such as upgrading the electrical wiring throughout the apartment and switching from a gas stove to an induction range to improve indoor air quality and reduce environmental impact. As a result, MAUD was tasked with sourcing affordable materials such as IKEA cabinets in the kitchen, working to improve their design impact with custom doors and hardware. Vintage and reclaimed fixtures, materials, and furniture were selected, when possible, to add period character and reduce the material carbon footprint. Existing opennings were retained and reworked such as tucking the washer dryer stack into what was previously a second kitchen doorway.

View from Living Room

View from Entry